Harbour Houseboat
Isle of Wight, United Kingdom
- Our low price promise from £190 p/n
-
Boat
Sleeps 6 /
Extra space for 3 children
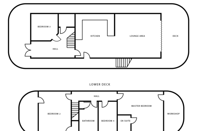
- 2 x king rooms, 1 x single room, bunk room with 2 bunks + extra trundle bed. Suitable for 6 adults.
Overview
Originally a 72ft Thames lighter, the spacious Harbour Houseboat (reassuringly named ‘Sturdy’) is now moored in a corner of the bustling Bembridge Harbour. At low tide she rests on the sand, rising slowly up as the tide comes in. Owner Georgina and her partner James live on a similar boat on the Thames itself, so they know exactly how to make life on the water supremely comfortable, and with two modern bathrooms, a fully equipped kitchen and even WiFi on board, you’ll want for nothing.
The four large bedrooms mean that the houseboat is suited to one or two families with children and groups of up to six friends. The open plan living room has great views over the harbour and all the way over to the mainland – peek through the telescope for the best views! Steel portholes and a zinc-topped kitchen table are modern and industrial, while colourful chairs, local artwork and some more light-hearted pieces (look out for 007 on the beach…) bring a touch of fun. Outside, metal stairs lead up to the open upper viewing deck, perfect for sunbathing while you watch the passing wildlife and fishing boats. In the evening you can enjoy a glass of wine and look up at the stars.
The Harbour Houseboat is moored alongside a variety of interesting yachts and fishing boats – you can get your own helping of the morning’s catch at the crab shack a couple of hundred metres away. It’s only a few minutes’ walk in to trendy Bembridge, and you’re never very far from a sandy beach. Inspired by the fresh seafood, kids might like to go rock pooling, followed perhaps by a visit to the nearby ice cream shop…
Please note: a £250 damage deposit will be taken pre-arrival, to cover any costs deemed to be above normal wear and tear. This is an arrangement between the guests and the owners' representatives and does not go through Canopy & Stars.
Guests are asked to bear in mind that Harbour Houseboat is situated on a working harbour alongside other neighbouring residential boats, and as such there may sometimes be surrounding noise.
Essentials
The important stuff
- Check in is from 3:30pm
- Check out is before 10am
- Access to the boat is via a gangplank that can be quite steep
- The Harbour Houseboat rises and falls a little with the tide, making her creak a little - this is perfectly normal!
- There are plug sockets and WiFi throughout
- The Houseboat can accommodate a maximum of 6 adults with room for 3 more children. Please let the owners know in advance how many beds are required to be made up in regard to sleeping configuration
- A £250 damage deposit will be taken pre-arrival, to cover any costs deemed to be above normal wear and tear. This is an arrangement between the guests and the owners' representatives and does not go through Canopy & Stars. You'll be contacted after booking to arrange this
- The owners can also help secure you discounted rates on ferries from the UK mainland and will contact after booking with details
- Guests are asked to bear in mind that Harbour Houseboat is situated on a working harbour alongside other neighbouring residential boats, and as such there may sometimes be surrounding noise.
Sleeping arrangements
- 2 x king rooms, 1 x single room, bunk room with 2 bunks + extra trundle bed. Suitable for 6 adults.
Extra space available
Space for 2 babies no charge. Travel cots and high chairs available on request
Space for 3 children no charge.
Kids & Pets
Children welcome. Sorry, pets cannot be accommodated.
Cooking
- Kitchen with Rangemaster hob and oven
- Microwave
- Fridge freezer
- Dishwasher
Washing
- Two showers, one bath
- Three toilets
Heating, lighting & bedding
- Gas central heating
- Electric lighting
- All bedding and towels provided
- Plug sockets throughout
Entertainment
- Telescope available for harbour and stargazing.
- Cards, board games, toys, DVDS and books provided
Getting there
Houseboat Sturdy, Embankment Road, Bembridge, Isle of Wight, PO35 5NS
Entrance to car park: ///digits.pulps.wanting
By public transport
The nearest train station is Brading, 2 miles away. There is a bus stop just outside the front gate.
By car
From Fishbourne ferry termimal, drive to Ryde on the A3054 and leave Ryde on the A3055 towards Sandown. Outside Ryde at a set of lights turn left to Bembridge on the B3330. At St. Helen’s take the B3995 to Bembridge. Quarter of a mile after driving alongside the sea you will find The Harbour Houseboat ‘Sturdy’ on your left by a bus stop. Park in the lay-by on the right and cross over the B3395 to the houseboat.
Once you have booked, please contact the manager Annabel to arrange the refundable security deposit and details on how to collect the keys. She can also help secure you discounted rates on ferries from the UK mainland.
Food & Drink
At the Harbour Houseboat
The Harbour Houseboat is fully self-catering and there's a small supermarket, fishmonger and butcher 10 minutes' walk away in Bembridge where you can pick up supplies. Fresh seafood is a must when you're this close to the sea - get yours from The Best Dressed Crab, a couple of hundred metres away.
Activities
At Harbour Houseboat
There's a telescope on board, and on a nice day you can spend hours sunbathing on the roof terrace. There are plenty of games, books and DVDs for when the sun goes down.
Places to Visit
Animal lovers are particularly well catered for, with attractions including the Amazon World Zoo Park, Donkey Sanctuary, Isle of Wight Zoo, Owl & Monkey Haven and Fort Victoria Aquarium.
If you fancy some culture and heritage, try Quay Arts, Carisbrooke Castle, Needles Old Battery, Osborne House, Quarr Abbey, Yarmouth Castle or Bembridge Windmill.
Or other attractions include House of Chilli, Rosemary Vineyard, Garlic Farm, Island Planetarium, The Needles Park, IoW Steam Railway, Dinosaur Isle, Cowes Maritime Museum and Ventnor Botanic Gardens.
Outdoor & Active
As well as walking and cycling the Isle of Wight's 200 miles of cycle route, you've got some of the best beaches in the UK on your doorstep and there are plenty of ways to enjoy the coast. Try sailing, sea fishing, kite surfing, sea kayaking, horse riding on beaches, rock pooling, sea swimming or surfing.
Festivals & events
During the summer the Isle of Wight is host to Bestival, the Isle of Wight Festival and Cowes Week Regatta.
Meet your hosts
Meet Georgina & James
Georgina Moore, who owns the houseboat Sturdy, is a writer who set her first novel The Garnett Girls on the Isle of Wight. It went on to be a Sunday Times bestseller and won The Isle of Wight Book Awards in 2024. Georgina was inspired to write the novel by the beautiful locations all around Bembridge harbour, particularly Seaview and Priory Bay. Her second novel River of Stars is out in summer 2025. There are copies of both novels aboard Sturdy for guests to read during their stay. Georgina and partner James live with their two children and Bomber the border terrier on a houseboat on Taggs Island in the River Thames.
Wildlife & Environment
The Harbour Houseboat lies in a corner of Bembridge Harbour with the best views possible out across The Solent. The harbour is a hub of activity all year round with wildlife, sailing and fishing boats. You'll see sea birds and swans swimming by, and behind the boat is Brading Marshes, an RSPB Reserve. There is a bio treatment plant on board which returns clear water to the harbour.
Reviews
Wow! What an amazing place. The houseboat is beautiful and very clean and comfortable, much larger than the pictures suggest. The outside areas are wonderful suntraps and the views over the harbour are fantastic.
06/04/2026Vanessa
The Houseboat was really nice and spacious. Bedrooms were lovely and airy. View from the lounge was outstanding and the telescope was thoroughly enjoyed by all. Great location and easy to find. Parking was always available. We felt the bathrooms were a bit tired and not up to usual canopy and stars standard. This was our 3rd time staying with canopy and stars. The kitchen was well equipped but had a real mix and match of crockery, mugs and glasses. It didn’t seem like it had been cleaned throughly before our arrival, there were small children hand prints on the windows, front of stainless fridge was really smeary and some surfaces were quite dusty. The towels provided were a bit tatty and crispy.
30/03/2026Lucy
Fab stay on Houseboat Sturdy. Spacious, well appointed, perfect for multigenerational short break.
27/10/2025Jo
'Houseboat Sturdy' , Bembridge Harbour, Isle of Wight. The location in the harbour is very good easy to find with plenty of parking options and within walking distance of both of the Village with its good shops and restaurants and also the two local Sailing clubs. The boat itself is outstanding and fitted out to the highest standard of any rental option I have come across. Ideal for our gathering of family on a return to the Island visit. Plenty of space for all to enjoy whether just relaxing or enjoying the views and motion of the harbour comings and goings. With its great living area opening on to the fore deck on which we enjoyed early evening drinks and catching up with our party and local friends perfect for us. The owners obviously take real care and interest in their Houseboat.
04/08/2025Graham
We loved our stay in the houseboat. It’s incredibly spacious with stunning views across the harbour, which change with the weather. Comfy beds and beautifully furnished. One of the best places I’ve ever stayed.
07/04/2025Julie
Booking Terms
Canopy & Stars low price promise
Book with us in confidence knowing you won’t find that place cheaper elsewhere. All of the prices we display are set and matched by our Owners. (In this world of foreign currency, we do have to say 'subject to exchange rates' for some of our European places.)
What does ‘from price’ mean?
Our ‘from price’ is based on a four night stay in low season and designed to help you to compare different prices across our collection. Some of our Owners vary their nightly rates and check in days throughout the year, so it may differ from the rate quoted below the calendar. It is quite common (although by no means universal) for places to charge a little more in peak season or for shorter stays, to cover changeover costs. Consider booking longer stays during the cooler months if you’re looking for the lowest nightly rates.
Agency Terms & Conditions
Except where otherwise specified, we Sawday’s Canopy & Stars Ltd (Company No 09088366) of Merchants House, Wapping Road, Bristol, BS1 4RW act only as an Agent in respect of all bookings we take and/or make on your behalf. As an Agent we act as an intermediary between you and the owner (‘’Owner’’) of the holiday accommodation (‘’Property’’) you will be staying in. We help to arrange reservations and bookings between you and the Owner and take payments from you on behalf of the Owner.
We are only arranging a contract between you and the Owner for hire of the Property and for any other services or arrangement you purchase from the Owner (the “Booking”). This means the legal contract for the Booking is between you and the Owner despite the fact that a payment for the Booking has been made to the Agent. Your contract for the Booking is not with Sawday’s Canopy & Stars Ltd (Canopy & Stars).
Canopy & Stars is part of the Sawday’s family of companies, a majority employee owned business, 24% owned by a charitable trust and a B Corp. We accept no liability in relation to any contract you enter into in relation to Bookings or for the acts or omissions of any supplier(s) or other person(s) or party(ies) connected with any Booking.
When making your Booking we will arrange for you to enter into a contract with the Owner, as detailed in clause 1.2 below. Your Booking is subject to these Agency Terms & Conditions and any other specific booking conditions of the relevant Owner(s) you contract with. The Owner’s booking conditions may limit and/or exclude the Owner’s liability to you.
You may decide to make more than one Booking at the same time. The price charged in total for more than one Booking will always equal the prices charged separately for each individual Booking. All Bookings are available to be purchased separately at the same price as they are when more than one Booking is made. This means that any multiple Bookings do not constitute a package as defined in the Package Travel, Package Holidays and Package Tours Regulations 1992.
By making a booking, you agree that:
- You have read these Agency Terms & Conditions and agree to be bound by them;
- The lead name on the Booking will be the person responsible for the Booking and shall be responsible for paying the deposit and the full price, for making any amendment and cancellation requests and for the payment of any additional charges. The lead name accepts these Terms & Conditions on behalf of all persons in the Booking;
- You consent to our use of your information in accordance with our Privacy Policy;
- You are over 18 years of age and where there may be age restrictions in place, you declare that you and all members of your party are of the appropriate age
The Canopy & Stars online booking system enables Guests to make Bookings 24 hours a day. To confirm your booking, you must pay a 25% deposit (or full payment if booking within 10 weeks of your check in date) and the entire Booking will be subject to the cancellation policy as outlined in clause 2 below. The Canopy & Stars telephone booking line is open Monday to Friday 9am to 6pm and Saturdays 10am to 2pm. When using the online enquiry form, for those Properties without online booking, please allow 24 working hours for us to contact you by telephone to confirm the Booking. If we are unable to reach you by phone, we will attempt to contact you by email. We will contact you during Canopy & Stars working hours (Monday to Friday 9am to 6pm and Saturday 10am to 2pm). Online or email enquiries will be dealt with in the order they are received, but please be aware that we cannot guarantee reservation of your selected dates until the receipt of suitable payment. Therefore, if possible, we do recommend that you book on the Canopy & Stars website using the online booking system.
1. Booking and payments
1.1 In order to confirm your chosen Booking, you must pay a 25% non-refundable deposit as required (or full payment if booking within 10 weeks of the date of your check-in). The deposit is non-refundable as it covers costs incurred and services provided to enable your Booking. These include, but are not limited to, marketing and PR, property inspection fees, Owner management, booking management, credit card fees and customer service.
1.2 Your Booking is confirmed and a contract between you and the Owner will exist when we receive payment of the deposit and send you a booking confirmation on the Owner’s behalf. This Booking confirmation email will be sent within 24 hours and will contain the details of your Booking and of payments made and due. If you have not received your Booking confirmation email within the specified time, please notify us as soon as possible by email (bookings@canopyandstars.co.uk). Please check your confirmation carefully and report any incorrect or incomplete information to us immediately. As we act only as booking Agent, we have no responsibility for any errors in any documentation except where an error is made by us.
1.3 Once the 25% deposit has been paid, the full balance payment will be due 10 weeks in advance of your check in. A reminder to pay your balance will be sent to you one week prior to this 10 week date, where applicable, by email. We automatically take the balance payment using the same card as used to make the deposit payment. It is your responsibility to advise us if we should use a different card and to contact us by telephone (0117 204 7830) to arrange for alternative payment method. If the automated balance payment does not successfully go through as there is a problem with your card, such as it is expiring, then we will contact you to try and take alternative payment. If you do not make any payment due to Canopy & Stars by the due date for payment and at the latest within 5 days of this date, then with regret, we will notify the Owner who will cancel your Booking and terminate their contract with you. In these circumstances, your rights to a refund are set out in clause 2.3 and 2.4 below. Please note that if you have paid in a currency that is different to the original pricing, we will not be able to guarantee the same conversion rate that was used to convert the deposit payment.
1.4 Except where otherwise advised or stated in the booking conditions of the Owner concerned, all monies you pay to us for a Booking will be held on behalf of the Owner(s) concerned.
1.5 Credit Card payments are processed via Elavon who provide merchants services facilities to Sawday’s Canopy & Stars Ltd.
2. Cancellation by You
2.1 If you have to, or want to cancel or amend your Booking, this request must be sent to us by email (bookings@canopyandstars.co.uk) and will be considered and responded to within two working days of receipt. Please ensure that you have received written confirmation of any changes to your Booking prior to travel. Whilst we will always try to help, we cannot guarantee that such requests will be met.
2.2 Cancellation by you at any time will result in your 25% deposit being forfeited. The deposit is always non-refundable as it covers costs incurred and services provided to enable your Booking.
2.3 All bookings are non-amendable and non-refundable within 10 weeks of your check in date. If you need to cancel your booking within 10 weeks, the total cost of the accommodation including the deposit will be forfeited. Cancellation should always be in writing to bookings@canopyandstars.co.uk.
2.4 If you need to cancel your booking at a date 10 weeks or more in advance of your check in date, the 25% deposit will be forfeited. If the booking has been paid in full the balance will be returned to you, minus the 25% deposit. Refunds will be issued in the same form and ratio as the original payment was made. Therefore, if a Gift Voucher was used to book your stay, the refund will be back onto a new Gift Voucher at the same amount as originally used. Alternatively, if you paid in cash, your refund will be processed in the currency of the booking. Where this is different to the currency of the payment card, this will be converted at the current exchange rate on the day of the refund.
2.5 Cancellations made by you, at any time, may incur a £50 administration fee in addition to us retaining the non-refundable deposit. This represents the administration costs incurred by us on behalf of the Owner to deal with such requests.
2.6 If extreme weather prevents you from reaching your holiday, taking, or finishing your holiday, you are still subject to these cancellation terms as outlined in clause 2.3 above. We strongly recommend that you take out a travel insurance policy which covers this eventuality. In the event of the property becoming unavailable (such as due to fire or flooding), Canopy & Stars will endeavour to provide the Guest with suitable alternative accommodation, starting with any other accommodation that may be available with the same Owner of your Booking, or will refund all monies paid, or a proportion in the case of curtailment. The Agency cannot, however, pay any compensation or expenses as a consequence of such an event.
2.7 Cancellation insurance is available to purchase from many providers, but will be a third-party arrangement and not involve Canopy & Stars or the Owner in any way. You are strongly recommended to take out personal travel insurance for all members of your party for UK holidays and you must take out personal travel insurance for international holidays, including for illness and cancellation due to Covid-19. It is your responsibility to ensure that the insurance cover is adequate for your needs, including cancellation and curtailment.
2.8 If you fail to check-in on your date of arrival your Booking will be cancelled and no refund will be due.
3. Amendments to your booking, requested by you
3.1 Amendments to your Booking can only be made more than 10 weeks prior to the check in date, after which time amendments may be treated as cancellation and our refund policy as detailed in clause 2.3 above may apply. All amendments are subject to availability and may incur a £50 admin fee detailed in clause 2.5 above.
3.2 If we can fulfil your request to amend your booking, any differences in price as a result of the amendment, will be paid by you in the case of an increase and refunded to you in the case of a decrease in price, e.g. amending your booking from low season to high season.
3.3 In the event that a date swap is offered, this will normally be agreed with a set timeframe to rebook and sometimes a credit against a future stay will be offered. The credit can only apply to a stay at the same space as originally booked.
3.3.1 If a date swap is offered, then the Agency Booking Terms and Conditions applied at the time of your original booking will still apply. Therefore, if your date was swapped within 10 weeks of the original check in date, the 10 week cancellation policy set out in clause 2.3 applies to your new stay, even if the new check in date is beyond 10 weeks.
4. Refunds
If a refund is issued it will be in the same form and ratio as the original payment was made. Therefore, if a Gift Voucher was used to purchase the original stay, the refund will be back onto a new Gift Voucher at the same amount as originally used.
5. Insurance
You are strongly recommended to take out personal travel insurance for all members of your party for your holiday, including holidays in the UK. It is your responsibility to ensure that the insurance cover is adequate for your needs, including cancellation and curtailment for any reason. Please read your policy details carefully and take them with you on holiday.
6. Changes and Cancellations by the Owner
We will inform you as soon as reasonably possible if the Owner needs to make a significant change to your confirmed Booking or to cancel your Booking. We will also liaise between you and the Owner to try and organise an alternative Booking offered by the Owner, or a refund but we will have no further liability to you.
7. Cancellations due to events outside of Owner’s control
An Owner may have to cancel a booking due to events outside of their reasonable control (see clause 22). In such circumstances, we will liaise between you and the Owner to try and organise an any alternative Booking offered by the Owner, or a refund but we will have no further liability to you.
8. Complaints & Procedure
We always aim to provide the best possible holiday experience, however, if you have any complaint or problems during your stay, please immediately notify the Owner during the stay itself, so that the Owner has the opportunity to resolve the problem at the time. If you do not follow this procedure, there will be less opportunity for the Owner to investigate and resolve your complaint and to make your stay as enjoyable as possible. Delays may also mean that the amount of compensation you may be entitled to, may be reduced or negated.
Whether or not your complaint is dealt with satisfactorily, please also let us know of the problem as soon as possible by emailing info@canopyandstars.co.uk. We will aim to respond within 1 working day to acknowledge your email. We will then review your feedback and investigate the complaint. This may involve discussing your concerns with the owner, revising the website listing for inaccuracies, and reviewing previous guest feedback and internal inspection notes. This process can take time to complete, so please allow approx. 7 working days for a final response.
We also welcome you to fill in our feedback survey which will be sent to you via email the day after you check out. It is important for us to gather as much information as possible about the experiences our guests are having. This is what helps us support our Owner in fulfilling their potential and identifying if anything could be improved.
9. Our Responsibility for your Booking
Your contract is with the Owner and its booking conditions apply. As Agent, we accept no responsibility for the actual provision of the Booking. Our responsibilities are limited to making the Booking in accordance with your instructions and acting properly in accordance with our legal duties as an Agent. We accept no responsibility for any information about the Booking that we pass on to you in good faith. However, in the event that we are found liable to you on any basis whatsoever, our maximum liability to you is limited to twice the cost of your Booking (or the appropriate proportion of this if not everyone on the Booking is affected). We do not exclude or limit any liability for death or personal injury that arises as a result of our negligence or that of any of our employees whilst acting in the course of their employment.
10. Your Responsibilities
10.1 Please note that you have a contract with the Owner of the property. As such you are under a responsibility to behave in a proper, appropriate and legal manner whilst staying at the property with due respect to the Owner, the Property and other guests and their Property.
10.2 You are responsible for informing the Owner of any losses or damage to the property as soon as possible. Please note that you will be liable to pay the Owner for any losses or damage to the property caused by you or a member of your party (except reasonable wear and tear). Some Owners may also require a damage deposit. If so, this information will be provided on the website place page under ‘essentials’.
10.3 You must also leave the property by the check-out time specified on your Booking. If any guest behaves inappropriately or improperly (of which the Owner will be the final judge on their Property), or illegally, the Owner reserves the right to ask the guest and their party (at their discretion) to leave the Property before the end of the holiday period and/or refuse any future bookings from you. Please note that this would be without the right to any refund.
11. Pets
11.1 Not all properties accept pets. If you wish to take your pet on holiday, please advise us before booking and we can check whether pets are accepted at the property. You must obtain the prior consent of the Owner before taking any pets to the property. If you take a pet to a place that doesn’t allow pets, or you exceed the number of pets allowed at a place, the Owner has the right to refuse you to stay at the Property, and/or they may ask you to leave the Property before the end of the holiday period. Please note that this would be without the right to any refund.
11.2 A nightly charge may be made by the Owner for each pet and additional terms may apply, you will be notified of this at point of Booking. Please check these terms carefully before booking and arriving.
11.3 Please do not leave your pets alone or unsupervised in the property at any time during your stay. For the safety and comfort of your pet we request that Owners exercise due diligence at all times, especially where the property is located near a road/livestock. Canopy & Stars nor the Owner can accept responsibility for the safety of your pet.
11.4 If any guest has an allergy to pets, please be aware that Owners (and we) cannot guarantee that a pet has not stayed in a particular Property. We and Owners cannot accept responsibility for any suffering which may occur as a result of such animals having been present in a property.
11.5 We ask that all owners of pets keep their pet under control at all times and to be responsible for ensuring that they do not damage the Property, livestock or vegetation during the stay. You will be liable for any damage caused by your pet. Any damage is to be reported to the Owner immediately. Any additional cleaning required, that may incur an additional charge, will be at the Owner's discretion.
12. Special requests
If you have any special requests (for example dietary requirements, allergy, cots or room location), please let us know at the time of booking. We will pass on all such requests to the Owner, but unfortunately, we can't guarantee that they will be met and we will have no liability to you if they are not.
13. Maximum Numbers
Please note that except by prior arrangement confirmed in writing, only the number of persons specified on a booking confirmation may occupy a property. Most owners reserve the right to refuse admittance or revoke a Booking if this condition is not observed and you are unlikely to receive any refund.
13.1 The Owner reserves the right to sue the guest for any loss, damage or injury caused to the Owner, the Property or to other guests and/or their property. As Agent, we will have no liability to you in these circumstances.
13.2 The Owner only supplies the Property for domestic and private use. You agree not to use the Property for any commercial, business or re-sale purpose, and the Owner has no liability to you for any loss of profit, loss of business, business interruption, or loss of business opportunity. If you do wish to use the Property for a commercial purpose, you must contact Canopy & Stars prior to confirming your booking.
14. Group Bookings
Not all Owners accept Bookings for a single sex group (for example, a stag or hen party). Guests wanting to make such a Booking should check with us beforehand to enable us to check whether the Owner is prepared to accept the Booking. We will then advise you accordingly. In event that an Owner does not accept this type of Booking then it is with regret, that the Booking may be cancelled, and cancellation fees may apply. It is the Guest’s responsibility to enquire with Canopy & Stars and/or check on our website beforehand to make sure that this type of Booking is permitted.
15. Pricing
15.1 Canopy & Stars reserve the right to amend advertised prices at any time on behalf of the Owner. We also reserve the right to correct errors in both advertised and confirmed prices. Special note: changes and errors sometimes occur.
15.2 Rates are set per place in the currency specified by the Owner. Where this has been converted into the currency of your preference, until the payment stage this will be an estimation only, based on a recent exchange rate. The original rate will be displayed before you confirm your payment and you will be given the option of paying in your own currency at our guaranteed rate, or paying in your own currency and leaving the conversion and any associated fees to your card provider.
16. Information & Accuracy
The information and prices shown on this website are varied from time to time and may change between the time you first view a property and make a Booking. You should check that all the details are as you expect prior to making a Booking. It is always possible that, despite our best efforts, some of the properties (including the features and extras available) may be incorrectly described and/or priced. If we discover this is the case after you have made a Booking, we reserve the right to contact you with details of the correct information and/or pricing and will give you the option to:
(1) proceed with the Booking based on the correct information and/or pricing, which may require the payment of an additional amount by you
OR
(2) subject to availability, change your booking dates to dates when the pricing can be honoured and so no additional charge to you. In the event that a lower price can be offered for alternative dates then the difference would be refunded
OR
(3) cancel the Booking. If we do not receive your instructions within 5 days of contacting you, we reserve the right to cancel your Booking without liability to you.
17. VAT
Many of the Owners of properties in the Canopy & Stars portfolio are not registered for VAT in which case no tax is payable. Where VAT is payable, the tax is included in the advertised holiday rental price. If the rate of VAT changes between the date of the Booking and the date of the stay, Canopy & Stars may adjust the rate of VAT that you pay, unless you have already paid for the Booking in full before the change in the rate of VAT takes effect.
18. Visa, passport and health requirements
Unless you tell us otherwise, we assume that all members of your party are British citizens who hold or will hold full British passports valid for the entire duration of the international Booking. Information on visa, passport and health requirements, where given and applicable, is so given on this basis. Requirements may change and you are therefore strongly recommended to check the up to date position with the Owner of the Booking, Passport Office, appropriate embassy or consulate or your doctor as applicable in good time before the commencement of your holiday. Prior to international travel it is your responsibility to check whether it is safe to travel by visiting the FCO website www.gov.uk/foreign-travel-advice.
19. Governing Law and Jurisdiction
These terms and conditions have been drafted in accordance with and are governed by English law and the courts of England and Wales have exclusive jurisdiction in relation to any and all disputes arising out of these Agency Terms & Conditions.
20. Discrepancies
In case of a discrepancy between these Agency Terms & Conditions and any other Canopy & Stars literature, these Agency Terms & Conditions shall prevail.
21. Validity clause
In the event that a court finds that a condition in these Agency Terms & Conditions is illegal or void, the illegal or void provision will be severed from the remainder of the Agency Terms & Conditions, which will continue to be valid and have full force and effect.
22. Events beyond an Owner or Agency’s control
If an Owner or Canopy & Stars is prevented or delayed from complying with any of their respective obligations under these Agency Terms & Conditions or a contract for a Booking due to events or circumstances beyond their reasonable control, the inability or delay in performing those obligations will not be treated as a breach of these Agency Terms & Conditions or a contract for a Booking. Examples of such events or circumstances include fire, flood and other acts of God, strikes, trade disputes, lock outs, restrictions of imports or exports, riot, accident, disruption to energy supplies, civil commotion, acts of terrorism or war, pandemic (including Covid-19), any national/local/regional government restrictions.
Thank you for wading through all the very boring, but very important stuff above.
Now the outdoors is calling, so go and get wild in nature!
Wow! What an amazing place. The houseboat is beautiful and very clean and comfortable, much larger than the pictures suggest. The outside areas are wonderful suntraps and the views over the harbour are fantastic.
06/04/2026